121 Austin Ct, Leesburg, GA 31763-6218

Street View
Street View
Loading Street View...
Property Details
- Address
- 121 Austin Ct, Leesburg, GA 31763-6218
- City
- Leesburg
- State
- GA
- ZIP Code
- 31763-6218
- County
- Lee
- Auction Date
- 2026-05-05
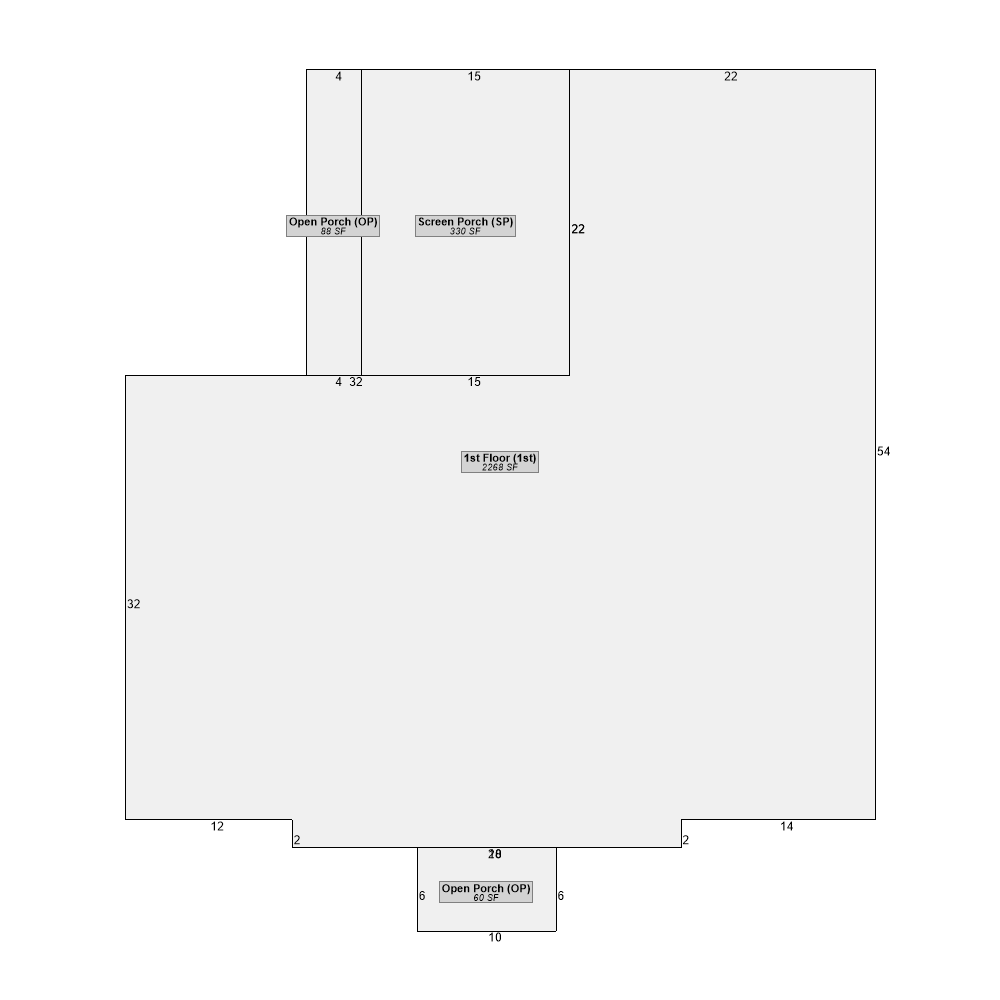
- Year Built
- 2008
- Bedrooms
- 4
- Bathrooms
- 2
- Square Feet
- 2,268
Unlock Full Property Intelligence
Sign up to access owner details, attorney info, deal analysis tools, and much more.
Combine views and filters for a repeatable CSV export that fits your investment workflow perfectly.
Support multiple processes and timeframes via configurable saved views.
Narrow your selection down to your precise investment thesis — e.g. Single Family homes, <$350K ARV, 3+ bedrooms.
Track the properties you care about and get notified when key details change before auction day.
Run deal analysis on any property with built-in ARV, rehab cost, and profit projections.
Tag properties with your own statuses — researching, bid ready, skip — to organize your pipeline your way.
Access homeowner names and mailing addresses for direct outreach and pre-auction negotiation.
Get the foreclosing attorney's firm name and phone number to verify sale details and postponements.
See the original mortgage amount, lender, and origination date to gauge equity and motivation.
Direct deed book and page references for fast courthouse or online record lookups.
One-click links to Zillow listings and county tax cards for instant comps and property details.
See calculated max bid, projected net profit, and ROI so you know your ceiling before you raise a paddle.
Evaluate rental potential with estimated net rent and cap rate for buy-and-hold analysis.
Direct links to third-party auction platforms so you can register and bid online without searching.
Know immediately when a sale is cancelled or postponed, with notes on why — so you never show up to a dead auction.
Track each property's current status through the foreclosure pipeline from filing to sale.
Already have an account?
